- 湘南の不動産情報サイト【 明治地所株式会社 】 HOME
- 足柄下郡 箱根町
- 足柄下郡 箱根町の中古一戸建て
- 物件番号:askr26C252Eの詳細情報
中古戸建
マグノリア箱根ヴィラ「和悦」・貸別荘として営業中!
お問い合わせ先
- 大船本店
- 営業時間 9:30~18:30
POINT 大船本店 担当:朝倉
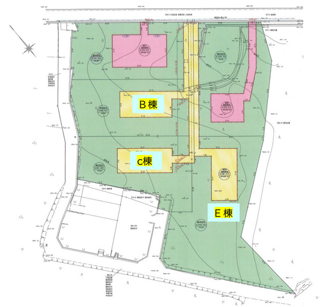
1.全体5棟別荘(旅館業[民泊ではありません])のうち、ホテル運営中3棟が売却希望です。「住宅宿泊事業」ではなく「旅館業」の免許を取得済みです。営業に縛りはなく、営業は継続してもしなくてもどちらでもOKです。
残りの棟は所有者が異なり、別荘としてご利用で、旅館業営業等はいたしておりません。
※温泉mustの方は、
近隣1.1キロ徒歩14分にある公営・仙石原「いこいの湯 」もお勧めします。
大人650円と安く、何よりph2.1で稀有な強酸(硫黄泉)で知られディープに人気です♪
浴槽は3人迄しか入れない狭さですが、休憩室は明るく静かで落ち着ける広間なのがとてもいいです♪
物件概要
| 価格 | 6700万円 | ||
|---|---|---|---|
| 住所 | 足柄下郡 箱根町仙石原 | ||
| 路線・最寄駅 | (1)JR御殿場線「御殿場」駅バス22分「仙石原案内所前」停歩12分 | ||
| 敷地面積 | 1889.59m²(571.6坪) | 建物面積 | 137.86m²(41.7坪) |
| 構造・階数 | 木造・2階建 | 間取り | 4LDK |
| 間取り詳細 | LDK24.6帖(1階) 洋室7.87帖(2階) 洋室5.06帖(2階) 洋室6.76帖(2階) 洋室6.12帖(2階) | ||
| 築年月日 | 2017年07月 | 敷地の権利形態 | 所有権 |
| 国土法による許可 | 不要 | 接道 | 不適合接道:無 南東側幅7m |
| 用途地域 | 第二種低層住居専用地域 | 地目 | 宅地 |
| 建ぺい率 | 20% | 容積率 | 40% |
| 私道面積 | 無 | 引渡し時期 | 相談 |
| 駐車場 | -(3台) | 取引態様 | 仲介 |
| 設備・仕様 | LPガス/東京電力/公営水道/浄化槽排水/システムキッチン/対面キッチン/温水洗浄便座/クローゼット/シューズインクローク | ||
| 備考 | ※建築基準法第22条区域 ※自然公園法(第2種特別地域B区域) | ||
| 学区情報 | 仙石原小学校 箱根中学校 ※学区につきまして、学校名が複数表示される場合がございますが、丁目以下の住所により異なるため、詳しい内容は該当の行政機関等にお問い合わせください。 |
||
| 更新日 | 2026-04-09 | 次回更新日 | 毎月15日と30日 |
| 担当 | 朝倉 誠 | 直通電話 | 090-8512-7242 |
| お問い合わせ |
明治地所株式会社 大船本店 〒274-0072 神奈川県鎌倉市岡本1丁目1番2号 明治ビル 電話 : 0467-43-1111 / FAX : 0467-43-1143 免許番号 : 神奈川県知事(13)9580 (公社)首都圏不動産公正取引協議会 (公社)神奈川県宅地建物取引業協会 (公社)全国宅地建物取引業保証協会 |
||
| 価格 | 6700万円 |
|---|---|
| 住所 | 足柄下郡 箱根町仙石原 |
| 路線・最寄駅 | (1)JR御殿場線「御殿場」駅バス22分「仙石原案内所前」停歩12分 |
| 敷地面積 | 1889.59m²(571.6坪) |
| 建物面積 | 137.86m²(41.7坪) |
| 構造・階数 | 木造・2階建 |
| 間取り | 4LDK |
| 間取り詳細 | LDK24.6帖(1階) 洋室7.87帖(2階) 洋室5.06帖(2階) 洋室6.76帖(2階) 洋室6.12帖(2階) |
| 築年月日 | 2017年07月 |
| 敷地の権利形態 | 所有権 |
| 国土法による許可 | 不要 |
| 用途地域 | 第二種低層住居専用地域 |
| 地目 | 宅地 |
| 建ぺい率 | 20% |
| 容積率 | 40% |
| 接道 | 不適合接道:無 南東側幅7m |
| 私道面積 | 無 |
| 引渡し時期 | 相談 |
| 駐車場 | -(3台) |
| 取引態様 | 仲介 |
| 設備・仕様 | LPガス/東京電力/公営水道/浄化槽排水/システムキッチン/対面キッチン/温水洗浄便座/クローゼット/シューズインクローク |
| 備考 | ※建築基準法第22条区域 ※自然公園法(第2種特別地域B区域) |
| 学区情報 | 仙石原小学校 箱根中学校 ※学区につきまして、学校名が複数表示される場合がございますが、丁目以下の住所により異なるため、詳しい内容は該当の行政機関等にお問い合わせください。 |
| 更新日 | 2026-04-09 |
| 次回更新日 | 毎月15日と30日 |
| 担当 | 朝倉 誠 |
| 直通電話 | 090-8512-7242 |
| お問い合わせ |
明治地所株式会社 大船本店 〒274-0072 神奈川県鎌倉市岡本1丁目1番2号 明治ビル 電話 : 0467-43-1111 / FAX : 0467-43-1143 免許番号 : 神奈川県知事(13)9580 (公社)首都圏不動産公正取引協議会 (公社)神奈川県宅地建物取引業協会 (公社)全国宅地建物取引業保証協会 |
明治地所使用欄
- askr26C252E
- 26C25&26D09
※掲載されている課税対象の物件の価格、諸費用等は、税込表示となっております。
消費税法の改正に伴い、物件の引き渡し時期、お支払い時期等により課税率が異なります。
詳しくは、弊社担当営業までご確認お願いします。
ローンシミュレーション
-
物件価格
-
金利(年)
-
ボーナス
-
頭金
-
返済期間
※ローン返済試算表は、あくまで試算であり、将来の金利動向により、実際のご返済額とは異なる場合があります。
また、各種数値は、融資の予約や審査などをお約束するものではありません。
お問い合わせ先
- 大船本店
- 営業時間 9:30~18:30
