- 湘南の不動産情報サイト【 明治地所株式会社 】 HOME
- 鎌倉市
- 鎌倉市の新築一戸建て
- 物件番号:tkda25F075の詳細情報
新築戸建
◆大船駅まで徒歩17分!南東・南西に面した角地の為、陽当たりがとても良い物件です◆
お問い合わせ先
- 湘南店
- 営業時間 9:30~18:30
POINT 湘南店 担当:武田
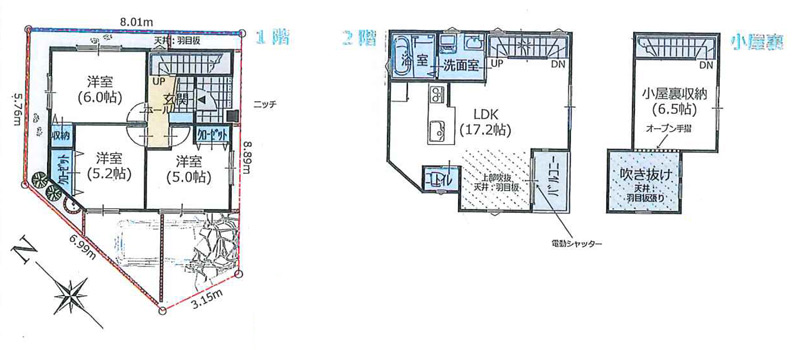
陽当たりの良い物件です。間取りは固定階段の小屋裏収納がついた3部屋付きの使い勝手の良い間取りです。2階リビングには吹抜けを採用し明るいリビングになります。
物件概要
| 価格 | 4880万円 | ||
|---|---|---|---|
| 住所 | 鎌倉市山崎 | ||
| 路線・最寄駅 | (1)JR東海道線「大船」駅徒歩17分 (2)JR根岸線「大船」駅徒歩17分 (3)湘南モノレール「富士見町」駅徒歩8分 |
||
| 敷地面積 | 69.25m²(20.94坪) | 建物面積 | 90.15m²(27.27坪) |
| 構造・階数 | 木造・2階建 | 間取り | 3LDK+小屋裏収納 |
| 間取り詳細 | LDK17.2帖(2階) 洋室6帖(1階) 洋室5.2帖(1階) 洋室5帖(1階) | ||
| 築年月日 | 2025年09月 | 敷地の権利形態 | 所有権 |
| 国土法による許可 | 不要 | 接道 | 不適合接道:無 角地 南東側幅4.3m 南西側幅3.1m |
| 用途地域 | 工業地域 | 地目 | 宅地 |
| 建ぺい率 | 60% | 容積率 | 200% |
| 私道面積 | 無 | 引渡し時期 | 相談 |
| 駐車場 | 有 | 取引態様 | 仲介 |
| 設備・仕様 | 都市ガス/東京電力/公営水道/下水排水/インターホンTV/ロフト/収納/システムキッチン/バルコニー/対面キッチン/追焚給湯/温水洗浄便座/浴室換気乾燥機/クローゼット/ペアガラス/食器洗浄乾燥機/吹抜 | ||
| 建築確認番号 | 第24KAK建確04166号 | ||
| 備考 | ※建物面積に小屋裏収納13.77平米を含む ※建築確認図面の納戸は部屋数として間取り表記しています ※納戸にはコンセント(電気・TV・EC)が付いています | ||
| 学区情報 | 玉縄小学校/鎌倉市立山崎小学校/富士塚小学校 鎌倉市立深沢中学校/大船中学校/玉縄中学校 ※学区につきまして、学校名が複数表示される場合がございますが、丁目以下の住所により異なるため、詳しい内容は該当の行政機関等にお問い合わせください。 |
||
| 更新日 | 2026-01-16 | 次回更新日 | 毎月15日と30日 |
| 担当 | 武田 圭太 | 直通電話 | 080-4664-7311 |
| お問い合わせ |
明治地所ハウジングセンター株式会社 湘南店 〒251-0052 神奈川県藤沢市藤沢559番地19 明治ビル 電話 : 0466-23-6111 / FAX : 0466-27-0077 免許番号 : 神奈川県知事免許(12)第11269号 (公社)首都圏不動産公正取引協議会 (公社)神奈川県宅地建物取引業協会 (公社)全国宅地建物取引業保証協会 |
||
| 価格 | 4880万円 |
|---|---|
| 住所 | 鎌倉市山崎 |
| 路線・最寄駅 | (1)JR東海道線「大船」駅徒歩17分 (2)JR根岸線「大船」駅徒歩17分 (3)湘南モノレール「富士見町」駅徒歩8分 |
| 敷地面積 | 69.25m²(20.94坪) |
| 建物面積 | 90.15m²(27.27坪) |
| 構造・階数 | 木造・2階建 |
| 間取り | 3LDK+小屋裏収納 |
| 間取り詳細 | LDK17.2帖(2階) 洋室6帖(1階) 洋室5.2帖(1階) 洋室5帖(1階) |
| 築年月日 | 2025年09月 |
| 敷地の権利形態 | 所有権 |
| 国土法による許可 | 不要 |
| 接道 | 不適合接道:無 角地 南東側幅4.3m 南西側幅3.1m |
| 用途地域 | 工業地域 |
| 地目 | 宅地 |
| 建ぺい率 | 60% |
| 容積率 | 200% |
| 私道面積 | 無 |
| 引渡し時期 | 相談 |
| 駐車場 | 有 |
| 取引態様 | 仲介 |
| 設備・仕様 | 都市ガス/東京電力/公営水道/下水排水/インターホンTV/ロフト/収納/システムキッチン/バルコニー/対面キッチン/追焚給湯/温水洗浄便座/浴室換気乾燥機/クローゼット/ペアガラス/食器洗浄乾燥機/吹抜 |
| 建築確認番号 | 第24KAK建確04166号 |
| 備考 | ※建物面積に小屋裏収納13.77平米を含む ※建築確認図面の納戸は部屋数として間取り表記しています ※納戸にはコンセント(電気・TV・EC)が付いています |
| 学区情報 | 玉縄小学校/鎌倉市立山崎小学校/富士塚小学校 鎌倉市立深沢中学校/大船中学校/玉縄中学校 ※学区につきまして、学校名が複数表示される場合がございますが、丁目以下の住所により異なるため、詳しい内容は該当の行政機関等にお問い合わせください。 |
| 更新日 | 2026-01-16 |
| 次回更新日 | 毎月15日と30日 |
| 担当 | 武田 圭太 |
| 直通電話 | 080-4664-7311 |
| お問い合わせ |
明治地所ハウジングセンター株式会社 湘南店 〒251-0052 神奈川県藤沢市藤沢559番地19 明治ビル 電話 : 0466-23-6111 / FAX : 0466-27-0077 免許番号 : 神奈川県知事免許(12)第11269号 (公社)首都圏不動産公正取引協議会 (公社)神奈川県宅地建物取引業協会 (公社)全国宅地建物取引業保証協会 |
明治地所使用欄
- tkda25F075
- 25F07&26A15&26A15
※掲載されている課税対象の物件の価格、諸費用等は、税込表示となっております。
消費税法の改正に伴い、物件の引き渡し時期、お支払い時期等により課税率が異なります。
詳しくは、弊社担当営業までご確認お願いします。
ローンシミュレーション
-
物件価格
-
金利(年)
-
ボーナス
-
頭金
-
返済期間
※ローン返済試算表は、あくまで試算であり、将来の金利動向により、実際のご返済額とは異なる場合があります。
また、各種数値は、融資の予約や審査などをお約束するものではありません。
毎月の返済額
お問い合わせ先
- 湘南店
- 営業時間 9:30~18:30